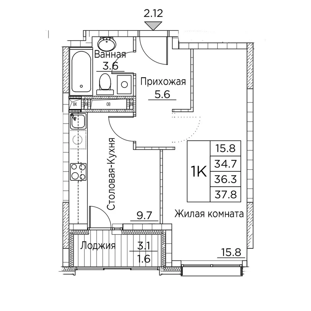
1-комнатная
37.9 м2
Цена по запросу
1 человек
смотрел эту квартиру за 24 часа
СУПЕР ОТДЕЛКА
Чистовая отделка - квартира с полностью готовой современной отделкой в светлых тонах. White box - всё готово к декорированию - стены подготовлены для отделки, проведена электрика с учетом рекомендаций по расстановке мебели и бытовой техники,выровнен пол, в каждой квартире установлена взломостойкая входная дверь. А с White Box plus дополнительно полностью выполнена отделка санузла.
для супер жизни

СУПЕР ИПОТЕКА
где начинаются искренние эмоции от покупки
- Банк
- Ставка
- Срок
- Ежемесячный платеж
- ДальневосточнаяСовкомбанкСтавка1.95%Срокдо 20 летЕжемесячный платеж19 599 руб.
- ДальневосточнаяГазпромбанкСтавка1.99%Срокдо 20 летЕжемесячный платеж19 673 руб.
- ДальневосточнаяАТБСтавка2%Срокдо 20 летЕжемесячный платеж19 691 руб.
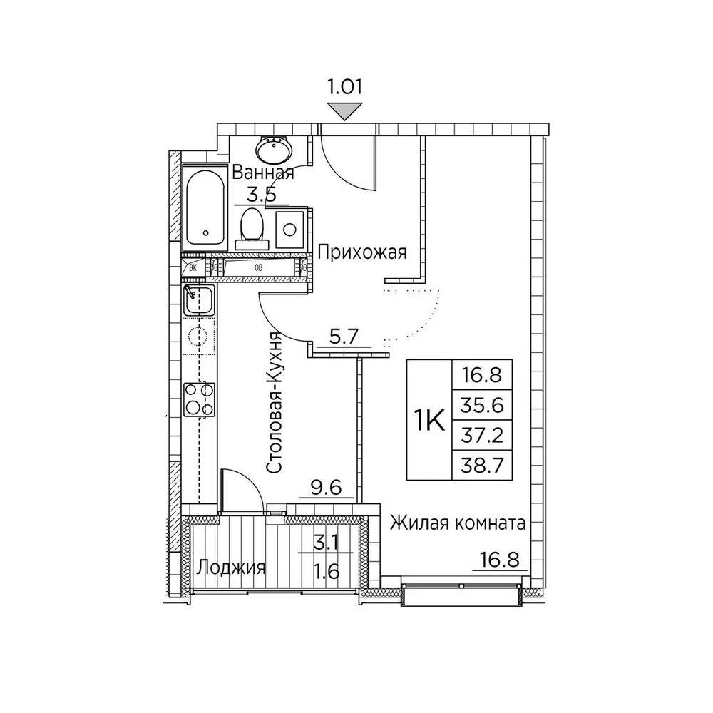
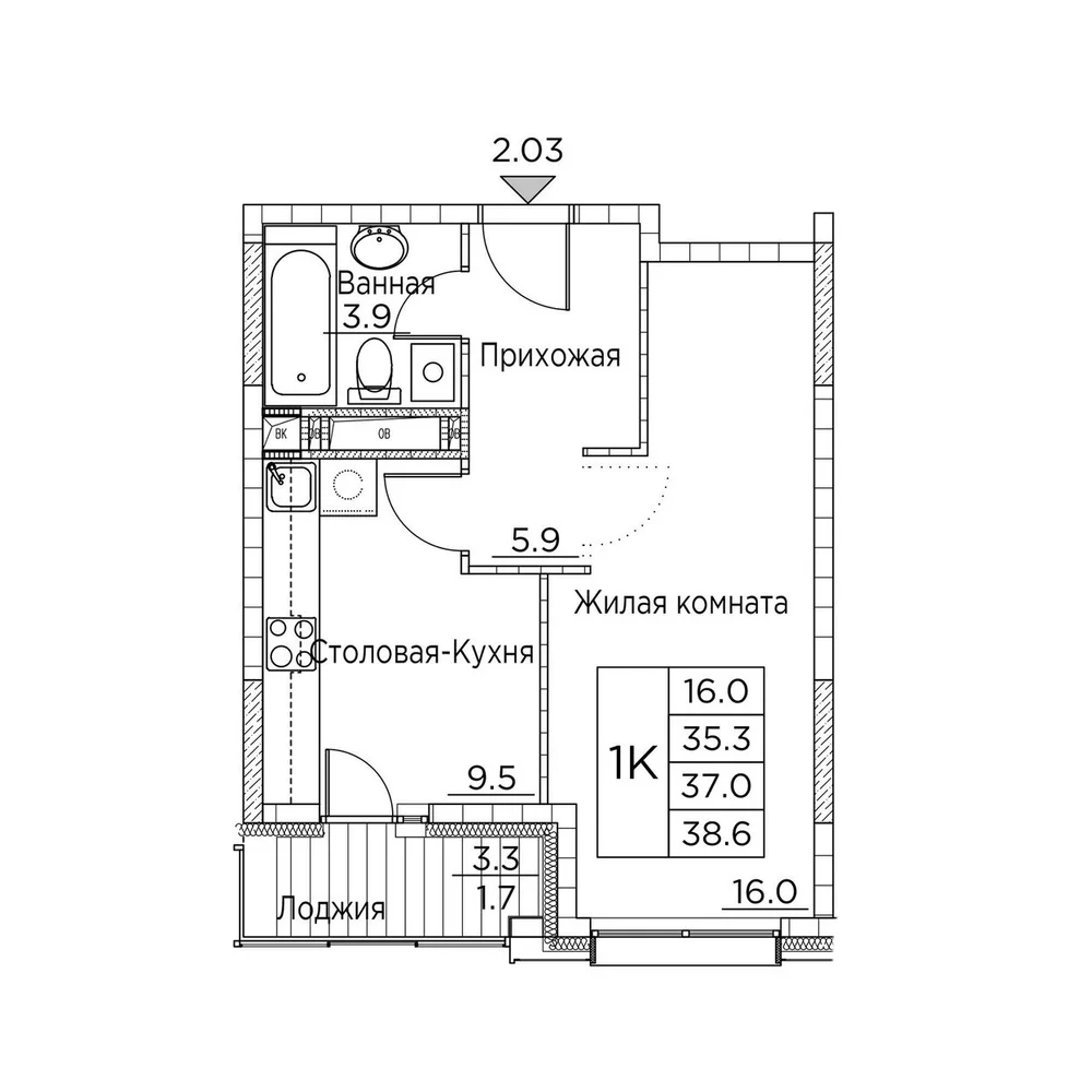
Похожие планировки
Оставьте заявку
Мы перезвоним и обсудим все детали












